BACK

Cumberland Road

Gibraltar  |  Ref. GMGS53393  |  Semi Detached in Gibraltar

£1,600,000

Property Details

Bedrooms:
No Beds
Bathrooms:
No Baths
Habitable Area:
239m2
External Area:
97m2
Rates:
£845.32 Per Annum
Furnished:
Partly Furnished

Special Features

  • Views
  • Balcony
  • Partly Furnished
  • Roof Terrace
  • Reception entrance to building
  • Patio/Terrace Area
  • High ceilings
  • Secure

Property Description

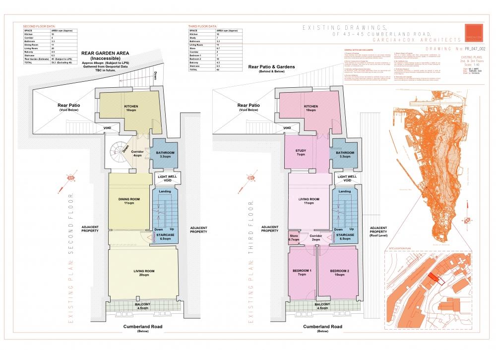
43–45 Cumberland Road

Prime Redevelopment Opportunity – South District, Gibraltar

Exculsive to GMI HOMES 

An exceptional opportunity to acquire an entire leasehold building located on Cumberland Road in Gibraltar’s highly desirable South District. This historic property presents significant potential for investors and developers seeking a redevelopment project in one of Gibraltar’s most established and characterful residential neighbourhoods.

The building is arranged over ground floor plus three upper floors and also benefits from a roof terrace together with private rear patios and garden areas. In total, the property offers approximately 238.7 sqm of internal accommodation, complemented by around 97 sqm of external space, creating a rare footprint with excellent redevelopment potential, subject to the necessary planning permissions.

Property Highlights

Entire building opportunity in the South District

Approx. 238.7 sqm internal area

Approx. 97sqm external areas

Ground floor + 3 upper storeys

54 sqm roof terrace with excellent sunlight

Balconies on each upper floor (approx. 4.5 sqm each)

Private rear patios

Aditonal Garden area ( subject to LPS)

Strong redevelopment potential (subject to planning)

Remaining lease: 128 years

 

Location

Cumberland Road sits within Gibraltar’s well-regarded South District, an area known for its traditional architecture, established residential community, and proximity to some of Gibraltar’s most attractive coastal and leisure locations.

The property is conveniently located near well-regarded schools, popular public beaches and coastal areas, neighbourhood amenities, scenic walking routes, and green spaces, making it an appealing location for future residential development.

 

Outdoor Space – A Rare Asset

One of the property’s most attractive features is the volume of outdoor space, something rarely found in buildings of this type within the district.

The roof terrace (approx. 54 sqm) enjoys excellent sun exposure and could be transformed into a rooftop entertaining area with sea and Rock views (subject to design).

Each of the three upper floors benefits from a balcony.

The rear patios and garden areas provide additional private outdoor spaces that could be incorporated into a future redevelopment scheme.

 

Development Potential

With its generous footprint and multi-level layout, the building offers considerable flexibility for redevelopment, subject to planning approval.

Potential schemes may include:

A large private residence with multiple terraces and gardens

Conversion into several residential apartments

Extension or reconfiguration in line with neighbouring properties

A boutique guesthouse or hospitality project

A mixed-use investment combining residential and commercial elements

 

Investment Opportunity

Opportunities to acquire an entire redevelopment building within Gibraltar’s South District are extremely rare. This property offers the chance to reposition a historic building and create a distinctive residential or investment project in one of Gibraltar’s most desirable residential areas.

Viewing and further information available upon request.

 

00350 200 41110

00350 57953000

van@gmihomes.com

Video

Video Icon

YOU MAY ALSO LIKE THESE PROPERTIES

  • Gibraltar | GMGS53244

    Midtown

    Bed Icon 3 Bath Icon 2Image of House Icon 142m2Image of Floorplan Icon 18m2

    £1,550,000

    Exclusive to GM International Homes Ltd - Midtown - Three bedroom - Two Bathroom apartment Exceptional High-Floor Apartment with Panoramic Views – Midtown, Gibraltar  We are delighted to ...

  • Gibraltar | GMGS53305

    North Gorge

    Bed Icon 4 Bath Icon 3Image of House Icon 177m2Image of Floorplan Icon 69m2

    £1,550,000

    Townhouse for Sale – North Gorge Development, South District, Gibraltar We are delighted to present this exceptional townhouse located in the second phase of the impressive North Gorge Developm ...

  • Gibraltar | GMGS4938

    Ragged Staff Wharf

    Bed Icon 3 Bath Icon 3Image of House Icon 149m2Image of Floorplan Icon 18m2

    £1,590,000

    Duplex Penthouse - Available for Rental or Purchase Stunning Refurbished Penthouse Duplex | Ragged Staff Wharf, Queensway Quay GM International Homes is delighted to present this bright and spacious ...

  • Gibraltar | GMGS5107

    North Gorge

    Bed Icon 4 Bath Icon 3Image of House Icon 177m2Image of Floorplan Icon 57m2

    £1,650,000

    IIIii Introducing the North Gorge 4-Bedroom Townhouse Discover the perfect blend of modern living and natural beauty with the North Gorge 4-bedroom townhouse. This exceptional residence is thoughtfu ...